Retrouvez-
vous
à Novus

Retour à notre collection

Novus

25 Ordnance Street, TORONTO, ON

Horaires de location

1 - 3 Chambres
À partir de $2,495
Commodités:
  • Ouvert aux animaux de compagnie
    Ouvert aux animaux de compagnie
  • Salon des résidents
    Salon des résidents
  • Gym
    Gym
  • Studio de yoga
    Studio de yoga
  • Salle de jeux
    Salle de jeux
  • Barbecue extérieur
    Barbecue extérieur
  • Terrasse sur le toit
    Terrasse sur le toit

Découvrez le Novus, une nouvelle communauté locative située au cœur du Liberty Village, qui offre des suites bien conçues et des services dignes d’un grand hôtel.


Nos espaces d’installations s’étendent sur deux étages au niveau des penthouses, avec un Sky Lounge agrémenté de foyers extérieurs et une vue panoramique à 360 degrés sur la ville, un Club Floor offrant un espace de travail à domicile exceptionnel, un café, un centre de fitness avec un espace d'entraînement en plein air, ainsi que des salles de projection et des salles de jeux.

Chaque détail a été pensé pour offrir une vie aux possibilités infinies. L'îlot de cuisine intégré crée un espace pour travailler, recevoir ou dîner, le choix vous appartient. Les chambres ont été conçues dans un souci de confort absolu. Elles peuvent accueillir un lit Queen, et sont pourvues de placards permettant de ranger la garde-robe de vos rêves.

En plus des meilleurs équipements et suites de Liberty Village, les résidents de Novus bénéficient d'avantages exclusifs grâce à des partenariats avec des entreprises locales au sein même de Liberty Village.

  • Chambres
  • Available
  • Floorplan File

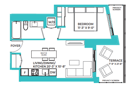
    Une Chambre

    Suite 25-1509

    1 Chambre + den

    1 Salle de bain

    598 Pieds carrés

    Disponible maintenant

    À partir de $2,675

  • Floorplan File

    Une Chambre

    Suite 25-1709

    1 Chambre + den

    1 Salle de bain

    598 Pieds carrés

    Disponible maintenant

    À partir de $2,695

  • Floorplan File

    Une Chambre

    Suite 25-0606

    1 Chambre + den

    1 Salle de bain

    608 Pieds carrés

    Disponible maintenant

    À partir de $2,795

  • Floorplan File

    Une Chambre

    Suite 25-2003

    1 Chambre

    1 Salle de bain

    482 Pieds carrés

    Disponible maintenant

    À partir de $2,495

  • Floorplan File

    Une Chambre

    Suite 25-1907

    1 Chambre

    1 Salle de bain

    535 Pieds carrés

    Disponible maintenant

    À partir de $2,525

  • Une Chambre

    Suite 11-0413

    1 Chambre

    1 Salle de bain

    504 Pieds carrés

    Disponible maintenant

    À partir de $2,550

  • Floorplan File

    Une Chambre

    Suite 11-1101

    1 Chambre + den

    2 Salle de bains

    543 Pieds carrés

    Disponible maintenant

    À partir de $2,575

  • Floorplan File

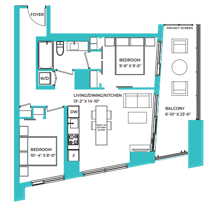
    Deux Chambres

    Suite 25-0702

    2 Chambres

    1 Salle de bain

    665 Pieds carrés

    Disponible maintenant

    À partir de $2,895

  • Floorplan File

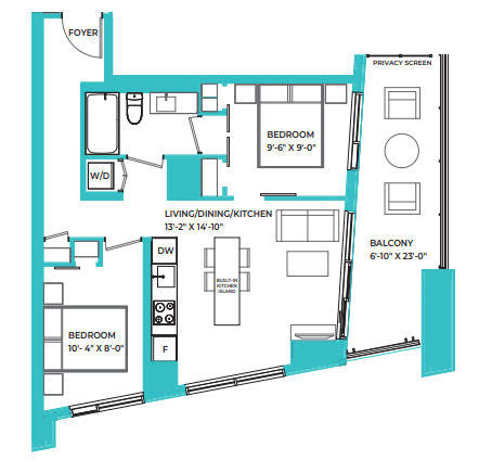
    Deux Chambres

    Suite 25-0902

    2 Chambres

    1 Salle de bain

    665 Pieds carrés

    Disponible maintenant

    À partir de $2,975

  • Floorplan File

    Deux Chambres

    Suite 25-1102

    2 Chambres

    1 Salle de bain

    665 Pieds carrés

    Disponible maintenant

    À partir de $2,995

  • Floorplan File

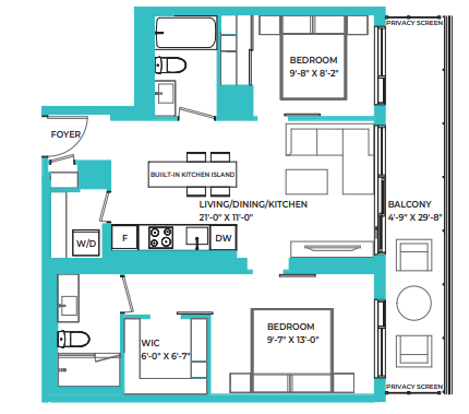
    Deux Chambres

    Suite 11-0308

    2 Chambres

    2 Salle de bains

    1093 Pieds carrés

    Disponible maintenant

    À partir de $3,995

  • Floorplan File

    Deux Chambres

    Suite 11-0309

    2 Chambres

    2 Salle de bains

    1146 Pieds carrés

    Disponible maintenant

    À partir de $4,750

  • Floorplan File

    Trois Chambres

    Suite 11-0307

    3 Chambres

    4 Salle de bains

    1371 Pieds carrés

    Disponible maintenant

    À partir de $5,495

  • Floorplan File

    Trois Chambres

    Suite 11-0319

    3 Chambres

    3 Salle de bains

    2553 Pieds carrés

    Disponible maintenant

    À partir de $7,450

Commodités du bâtiment

  • Salle de conditionnement physique conçue par des professionnels
  • Studio de yoga et d’entrainement
  • Salon résidentiel avec Café et Wi-Fi
  • Espace de coworking
  • Salle à manger privée avec cuisine
  • Salle de medias
  • Terrasse sur le toit avec espace lounge, foyers et BBQ
  • Spa pour animaux sur place
  • Salle de jeux
  • Cinéma
  • Système de gestion de colis

Commodités des suites

  • Îlot de cuisine multifonctionnel avec port USB
  • Balcons spacieux pour un espace de vie extérieur
  • Armoires de cuisine élégantes et sur mesure
  • Cinq appareils électroménagers Energy Star en acier inoxydable
  • Ensemble d’appareils électroménagers de luxe dans certaines suites
  • Baignoire pleine grandeur avec carreaux en porcelaine pleine hauteur
  • Salle de lavage
  • Armoires de salle de bain sur mesure avec rangement intégré
  • Stores intégrés à toutes les fenêtres
  • Fenêtres du sol au plafond
  • Béton insonorisant pour une vie tranquille
  • Placard d’entrée et espaces de rangements
  • Placard walk-in dans certaines suites
  • Entrée sans clé
  • Douche à l’italienne dans certaines suites
  • Terrasses spacieuses dans certaines suites
  • Thermostats individuels intelligents